Toll Free :
1800 266 21 55
|
×
SUBMIT
HOME
about
primo
location
plans
specifications
project associates
project gallery
contact us
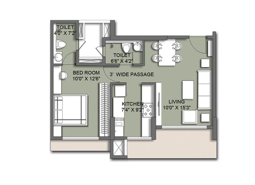
TYPICAL FLOOR PLAN
|
1 BHK
|
2BHK
|
3BHK (COMBINATION)
1 BHK
446 sq.ft (Carpet Area)
View 3D Plan